Intéressé par la construction d’une maison en Ille-et-Vilaine, Côtes d’Armor ou Morbihan, vous pouvez nous laisser vos coordonnées et renseignez la commune sur laquelle vous souhaitez construire, un conseiller commercial vous rappellera dans les meilleurs délais.
Informations complémentaires
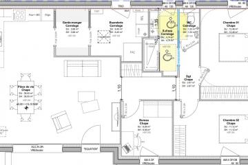
Chambre(s) : 2
Salle(s) de bain : 1
Surface habitable : 87 m²
Surface terrain : 335 m²
Surface annexe : 38 m²
Garage(s) : 0
Prix : 244 900 €
Géolocalisation du bien
*Terrain proposé et vendu par notre partenaire foncier selon disponibilité et autorisation de publicité, prix du terrain hors frais de notaire et d’hypothèque. Prix maison : hors papiers peints, peintures, revêtements de sol dans les chambres, cuisines, meubles vasques, et faïences (modifiable sans préavis, prix variables suivant les prestations souhaitées) hors frais d’hypothèque.