Saisissez l'opportunité de construire une maison à Guichen.
Le terrain, d'une superficie de 281 m², accueille une maison de 90,54 m².
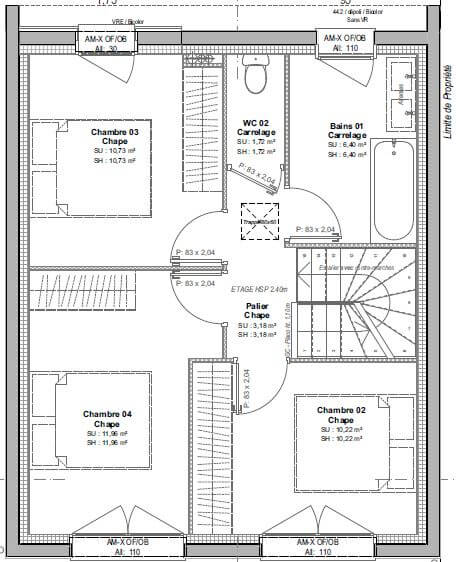
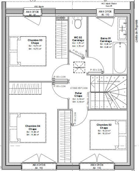
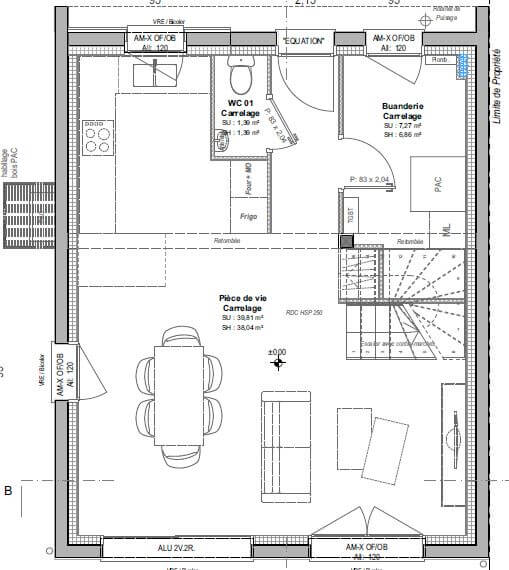
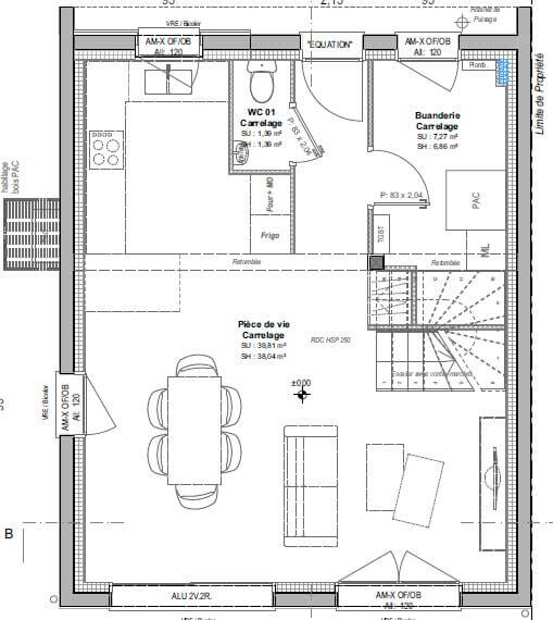
L'intérieur bien distribué comprend un espace de vie généreux de 38 m², trois chambres et une salle de bains.
Prix terrain + maison de 239 000€ (hors frais annexes d'environ 25 000€).
Équipements supplémentaires : abri pour vélos : abri jardin de 6,70 m².
Informations complémentaires
| Chambre(s) : 3 | Salle(s) de bain : 1 | Surface habitable : 91 m² |
| Surface terrain : 281 m² | Surface annexe : 38 m² | Garage(s) : 0 |
| Prix : 239 206 € |
Géolocalisation du bien
*Terrain proposé et vendu par notre partenaire foncier selon disponibilité et autorisation de publicité, prix du terrain hors frais de notaire et d’hypothèque.
Prix maison : hors papiers peints, peintures, revêtements de sol dans les chambres, cuisines, meubles vasques, et faïences (modifiable sans préavis, prix variables suivant les prestations souhaitées) hors frais d’hypothèque.




