Rare à Pont-Réan !
Située à Guichen, à proximité du Boël, de Bruz et de la zone commerciale de Vert Buisson, cette maison bénéficie d'une belle luminosité et d'un jardin 314m² orienté Sud-Ouest au coeur d'un environnement arboré.
En campagne, près d'un parc mais également proches des transports et des axes d'axessibiltés àRennes, elle est composée de 5 pièces répartie sur 100m².
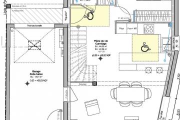
Comprenant au rez-de-chaussée, une entrée, une cuisine ouverte, un Salon / Séjour de 44 m², une chambre parentale, avec une salle d'eau, avec placard et de WC séparés,
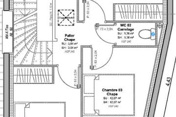
A l'étage, vous pourrez profiter de 3 chambres avec placard, une salle de bain, de WC séparés.
Grand garage permettant de rentrée une voiture familiale.
Votre projet Maison + Terrain à partir de 261230€ (Hors frais)
Informations complémentaires
| Chambre(s) : 4 | Salle(s) de bain : 2 | Surface habitable : 100 m² |
| Surface terrain : 314 m² | Surface annexe : 44 m² | Garage(s) : 1 |
| Prix : 261 230 € |
Géolocalisation du bien
*Terrain proposé et vendu par notre partenaire foncier selon disponibilité et autorisation de publicité, prix du terrain hors frais de notaire et d’hypothèque.
Prix maison : hors papiers peints, peintures, revêtements de sol dans les chambres, cuisines, meubles vasques, et faïences (modifiable sans préavis, prix variables suivant les prestations souhaitées) hors frais d’hypothèque.





