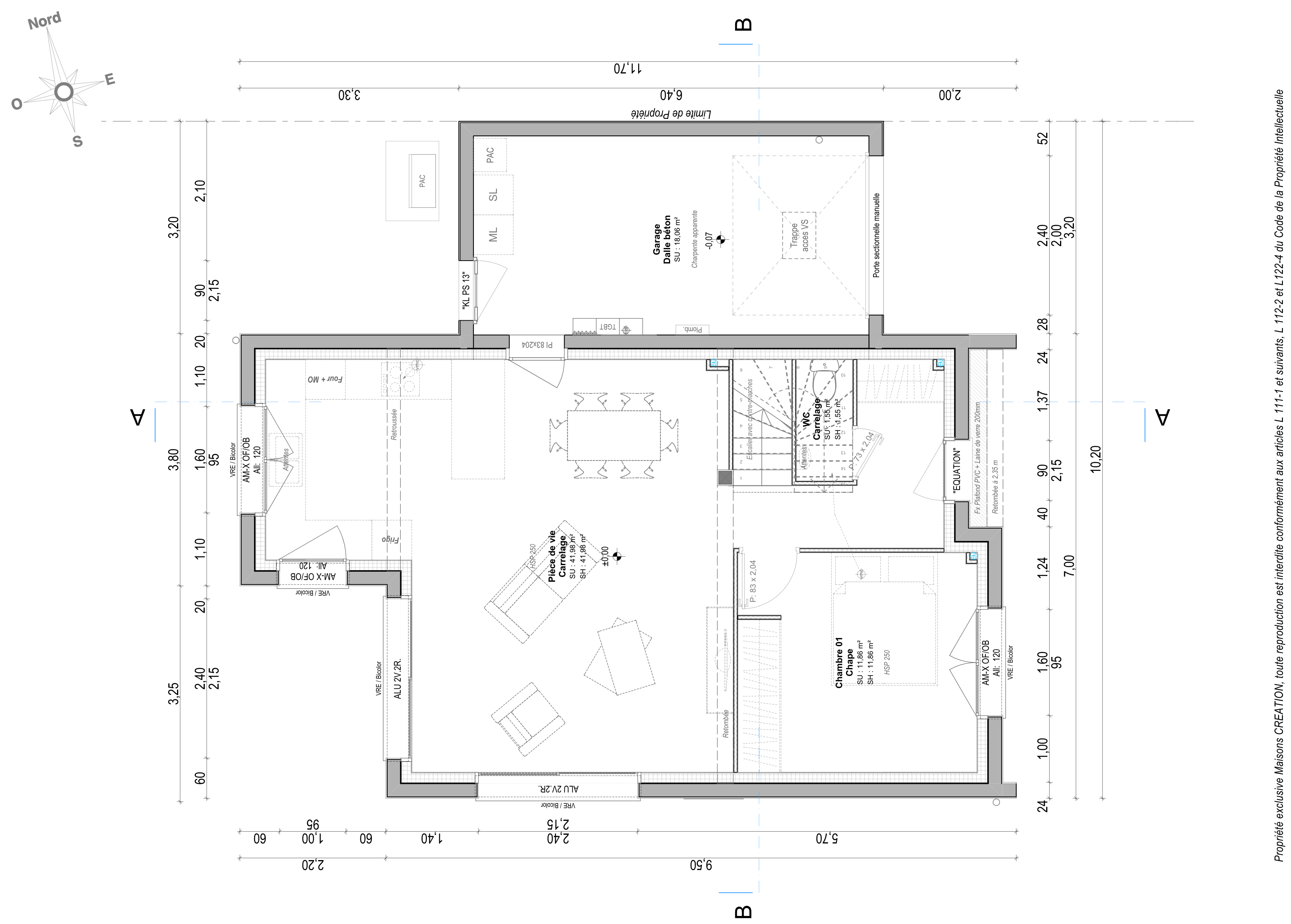
A GEVEZE, situé sur l'Axe Rennes / Saint-Malo, nous vous proposons, sur un terrain de 354 m², une maison de 103 m² composé :
- au rez-de-chausée : une pièce de vie de 42 m², une chambre, des WC séparés,
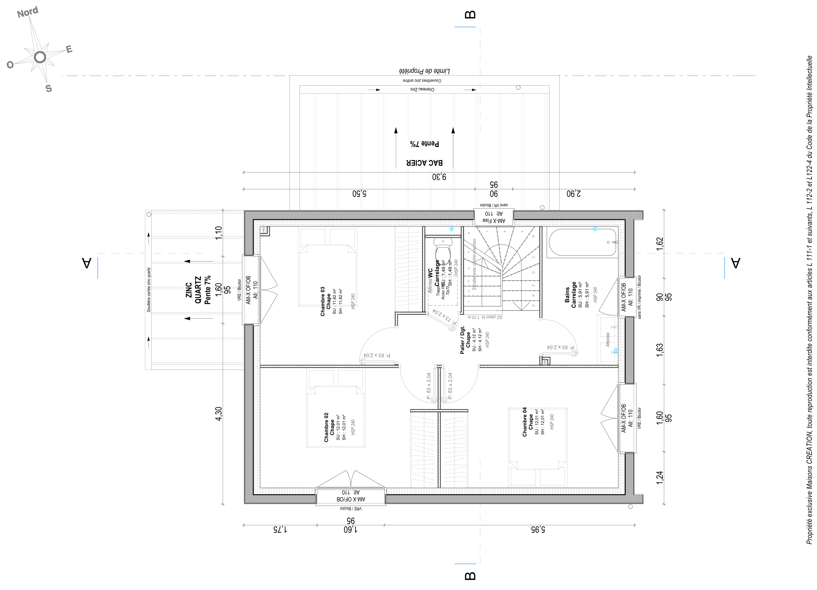
- à l'étage : 3 chambres, une salle de bains et des WC séparés.
Garage compris.
Projet entièrement personnalisable.
Informations complémentaires
| Chambre(s) : 4 | Salle(s) de bain : 1 | Surface habitable : 103 m² |
| Surface terrain : 354 m² | Surface annexe : 42 m² | Garage(s) : 1 |
| Prix : 341 700 € |
Géolocalisation du bien
*Terrain proposé et vendu par notre partenaire foncier selon disponibilité et autorisation de publicité, prix du terrain hors frais de notaire et d’hypothèque.
Prix maison : hors papiers peints, peintures, revêtements de sol dans les chambres, cuisines, meubles vasques, et faïences (modifiable sans préavis, prix variables suivant les prestations souhaitées) hors frais d’hypothèque.





