Sur la commune de GEVEZE, axe Rennes / Saint-Malo, idéalement situé, nous vous proposons, sur un terrain de 354m², une maison composée comme suit :
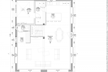
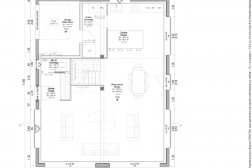
- au rez-de-chaussée : un séjour, salon, cuisine de 66m², une arrière-cuisine (buanderie/cellier) et des WC séparés,
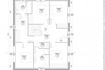
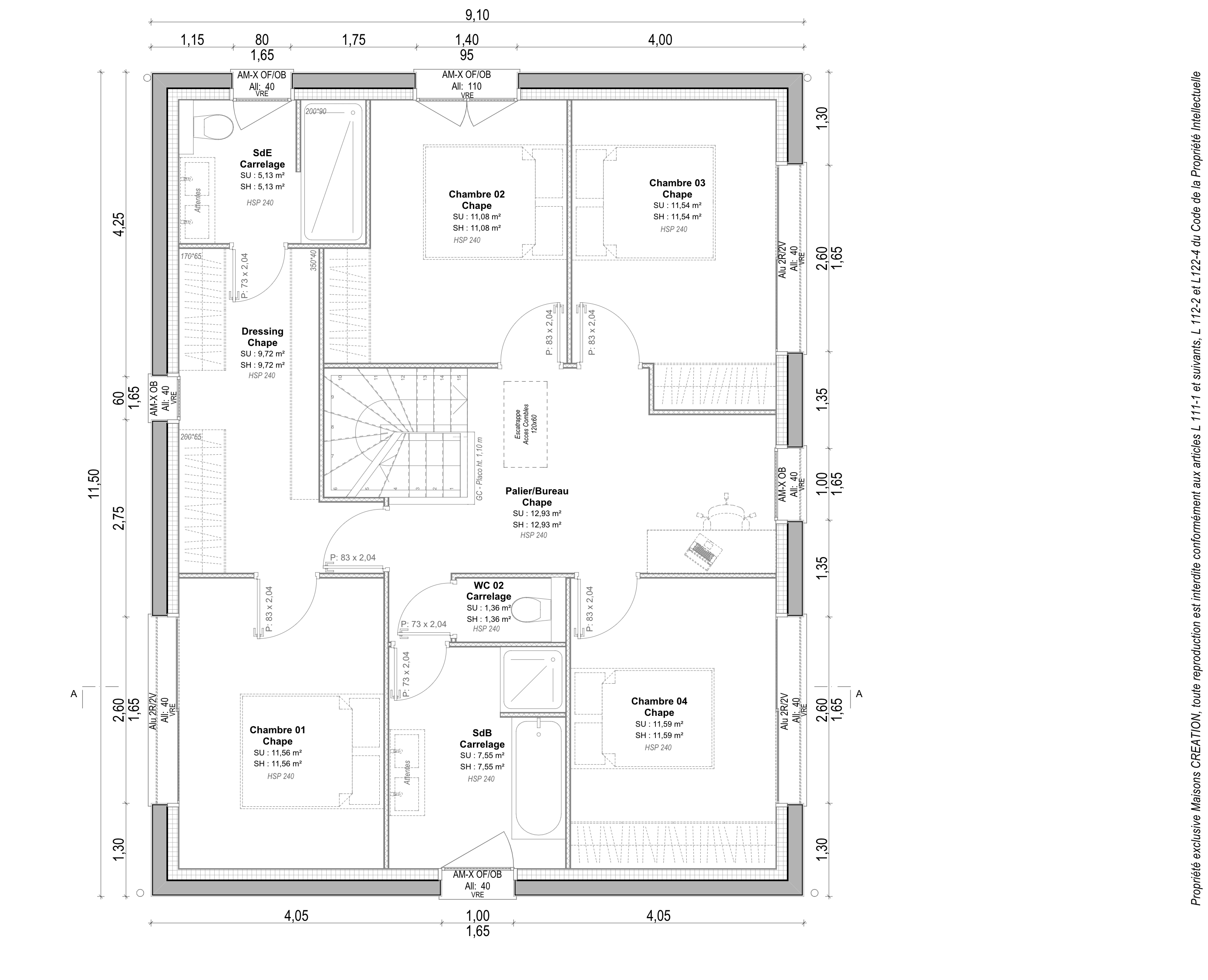
- à l'étage : une suite parentale (chambre, dressing, salle d'eau) de 25m², 3 chambres, une salle bains, des WC séparés et une mezzanine / bureau.
Garage compris.
Projet entièrement personnalisable.
Informations complémentaires
| Chambre(s) : 4 | Salle(s) de bain : 2 | Surface habitable : 158 m² |
| Surface terrain : 354 m² | Surface annexe : 66 m² | Garage(s) : 1 |
| Prix : 458 900 € |
Géolocalisation du bien
*Terrain proposé et vendu par notre partenaire foncier selon disponibilité et autorisation de publicité, prix du terrain hors frais de notaire et d’hypothèque.
Prix maison : hors papiers peints, peintures, revêtements de sol dans les chambres, cuisines, meubles vasques, et faïences (modifiable sans préavis, prix variables suivant les prestations souhaitées) hors frais d’hypothèque.





