Idéalement situé à Fougères !
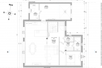
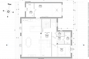
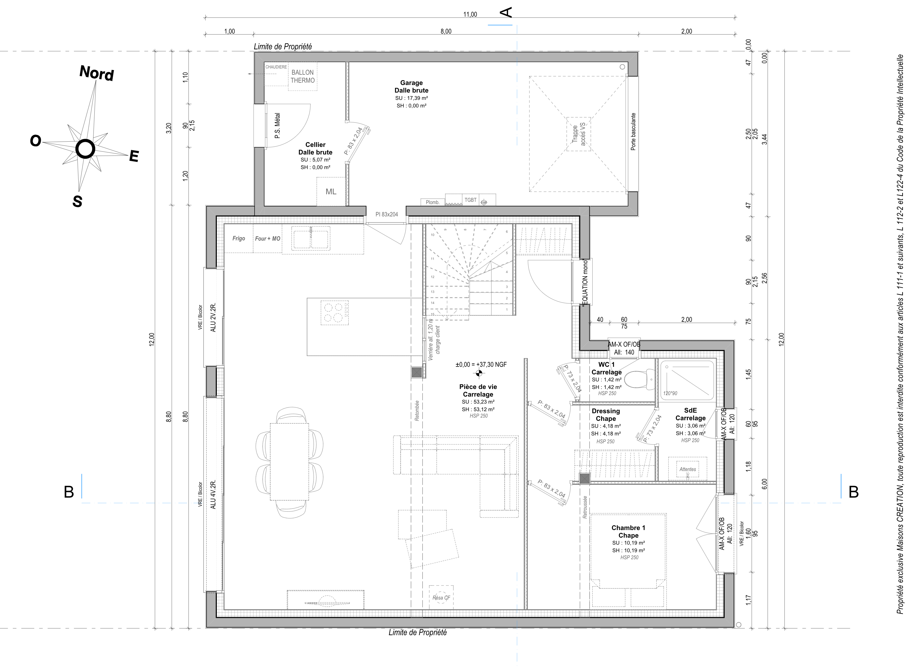
Située à Fougères, cette maison contemporaine de 124m², sur un terrain de 323m² bénéficie d'une belle luminosité grâce à son jardin orienté Sud.
A proximité des écoles, près des commodités et services, cette maison comprend :
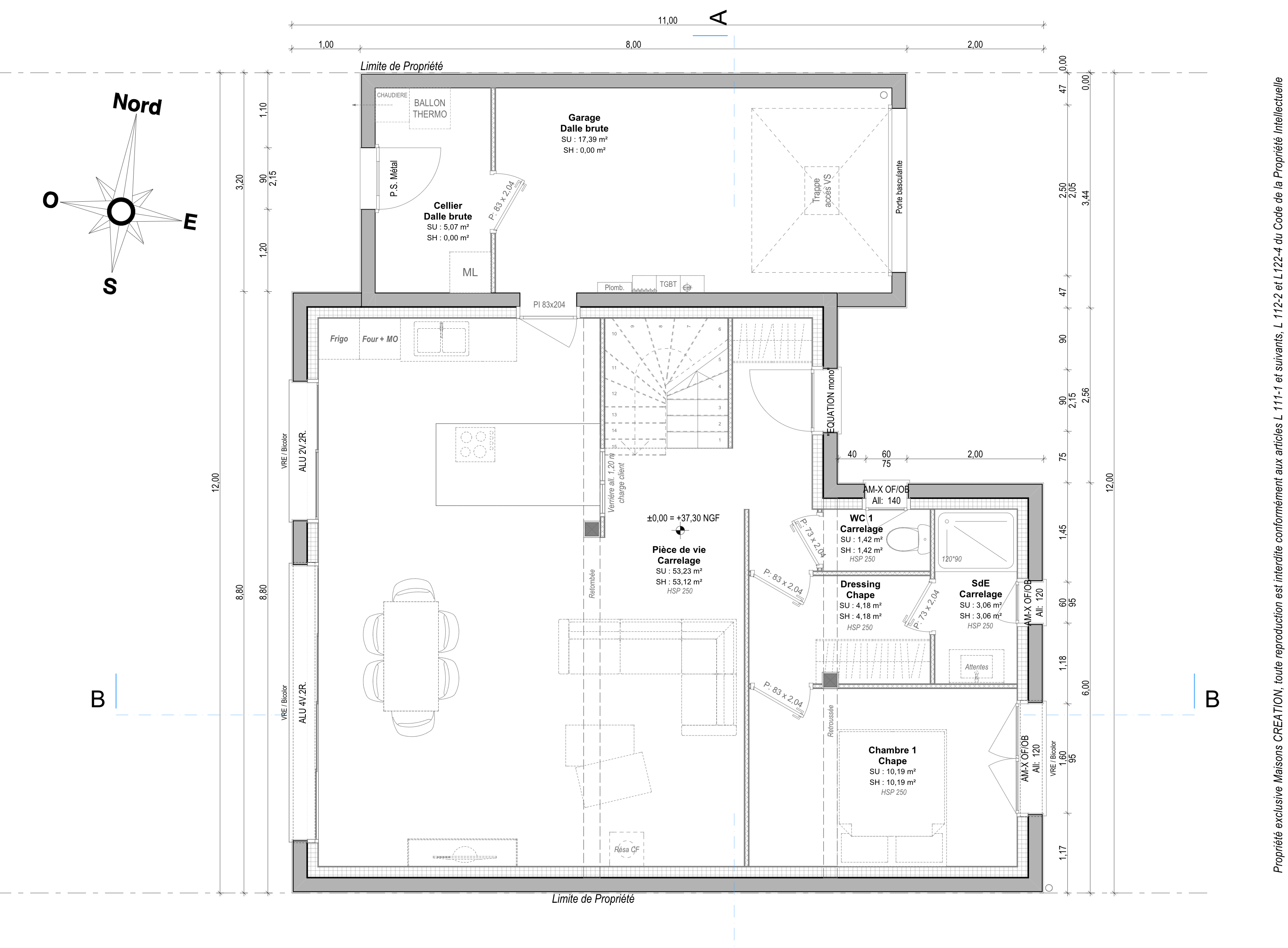
- au rez-de-chaussée : une cuisine ouverte, une buanderie, des WC séparés, un Salon / Séjour de 53m², une chambre parentale de 18m², avec une salle d'eau et un dressing,
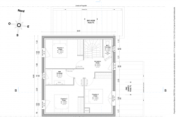
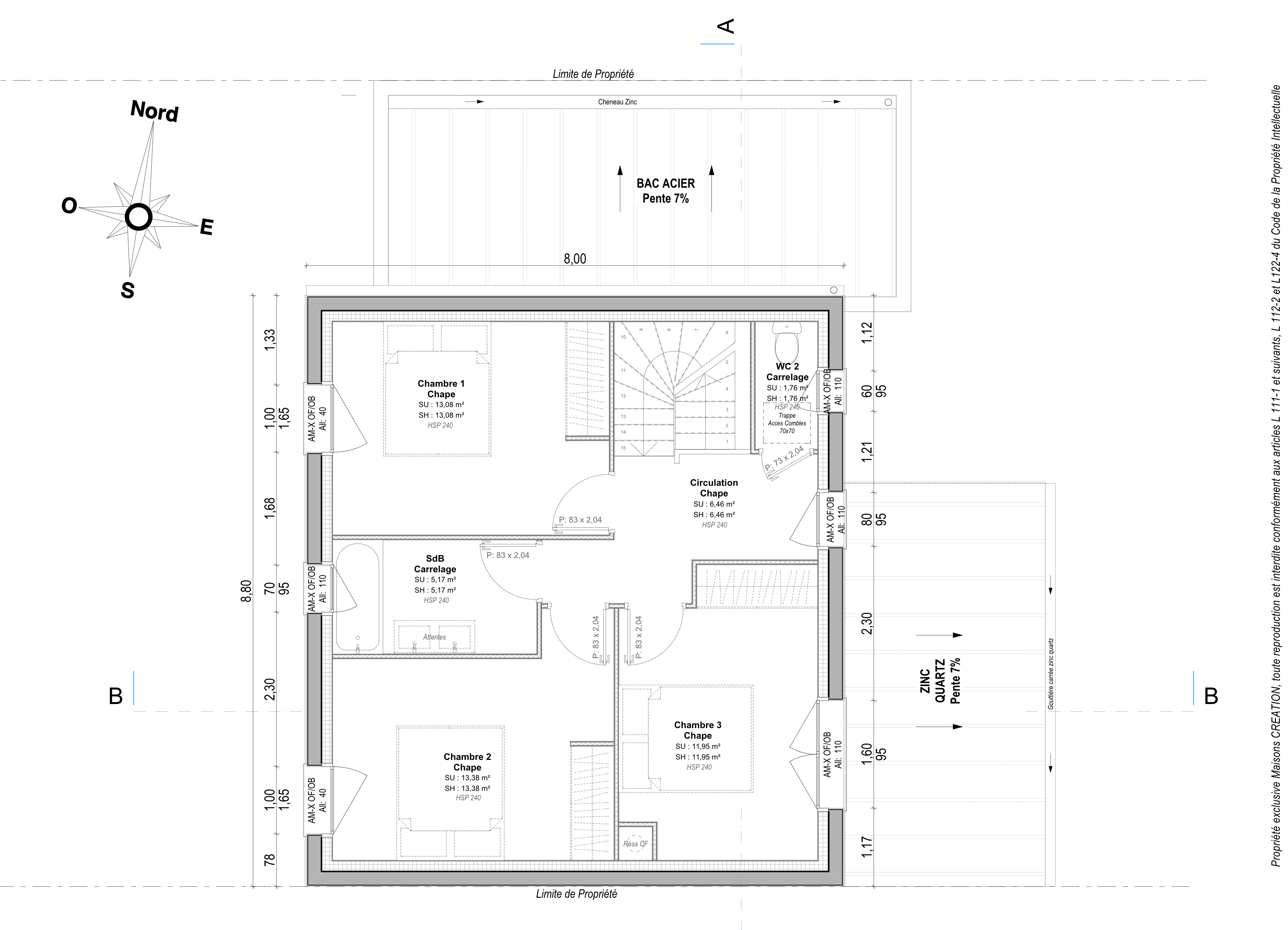
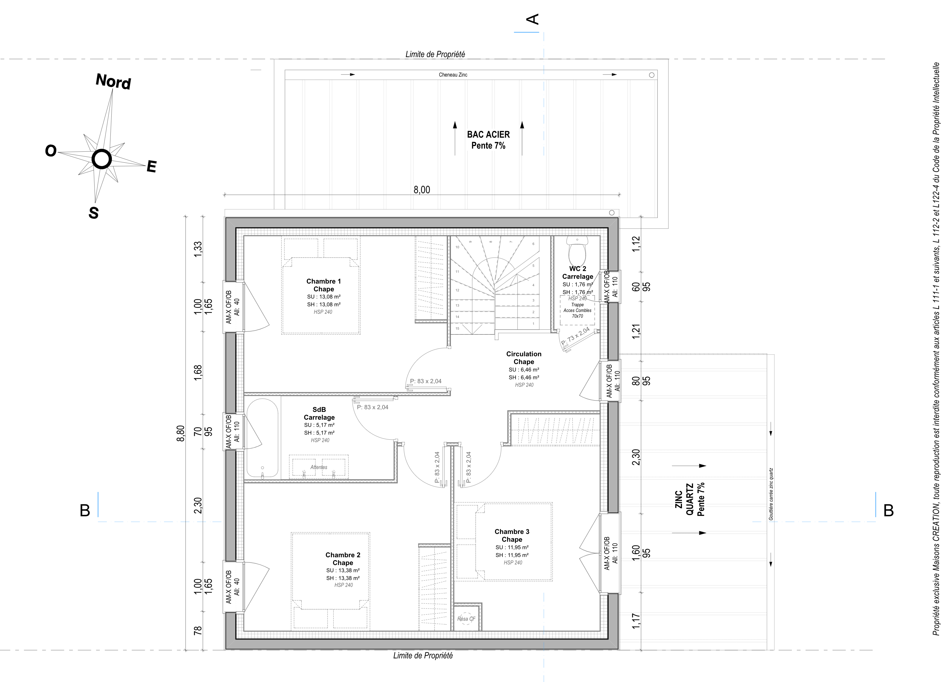
A l'étage, vous pourrez profiter, de 3 chambres, WC séparés et d'une salle de bains.
Cette maison dispose également d'un garage attenant.
Votre projet Maison + Terrain à partir de 324000€ (Hors frais)
NON MANDATÉ POUR LA VENTE DES TERRAINS
Maisons CREATION Rennes n’est pas chargé de réaliser la vente des terrains à bâtir mentionnés dans ces annonces.
Maisons CREATION Rennes agit seulement en qualité de constructeur.
Informations complémentaires
| Chambre(s) : 4 | Salle(s) de bain : 2 | Surface habitable : 124 m² |
| Surface terrain : 323 m² | Surface annexe : 53 m² | Garage(s) : 1 |
| Prix : 324 000 € |
Géolocalisation du bien
*Terrain proposé et vendu par notre partenaire foncier selon disponibilité et autorisation de publicité, prix du terrain hors frais de notaire et d’hypothèque.
Prix maison : hors papiers peints, peintures, revêtements de sol dans les chambres, cuisines, meubles vasques, et faïences (modifiable sans préavis, prix variables suivant les prestations souhaitées) hors frais d’hypothèque.





