Coup de coeur pour cette maison contemporaine située à Crevin, proche de l'axe Rennes-Nantes.
Elle bénéficie d'une belle luminosité, d'un jardin orienté Sud de 425m² et se compose de 6 pièces réparties sur 119m². Au rez-de-chaussée se trouvent une entrée, une pièce de vie de 56m², une cuisine ouverte, des WC séparés et une chambre.
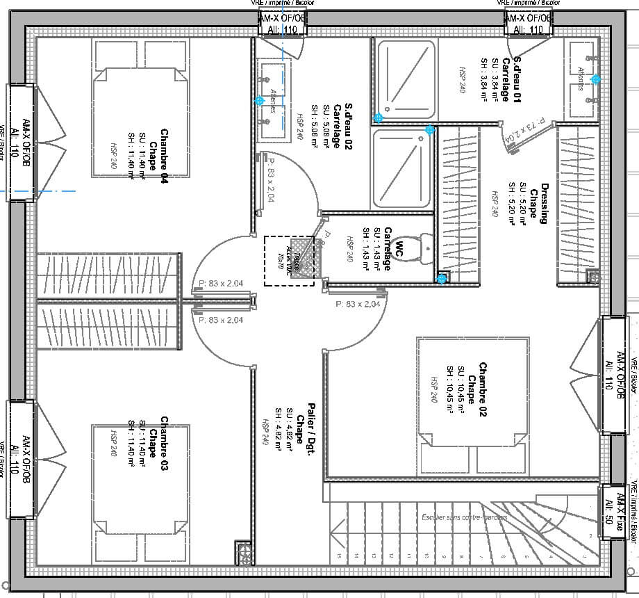
A l'étage, vous pourrez profiter de WC séparés, d'une salle d'eau, d'une chambre parentale avec salle d'eau attenante et dressing, ainsi qu'une deuxième chambre. Le tout avec un garage attenant.
Votre projet Maison + Terrain à partir de 334350€ (Hors frais).
Informations complémentaires
| Chambre(s) : 4 | Salle(s) de bain : 2 | Surface habitable : 119 m² |
| Surface terrain : 425 m² | Surface annexe : 56 m² | Garage(s) : 1 |
| Prix : 333 500 € |
Géolocalisation du bien
*Terrain proposé et vendu par notre partenaire foncier selon disponibilité et autorisation de publicité, prix du terrain hors frais de notaire et d’hypothèque.
Prix maison : hors papiers peints, peintures, revêtements de sol dans les chambres, cuisines, meubles vasques, et faïences (modifiable sans préavis, prix variables suivant les prestations souhaitées) hors frais d’hypothèque.




