Situation idéale à Crevin !
À proximité du centre de cette agréable petite ville où tout les commerces et services sont réunis, nous vous proposons, cette maison contemporaine à étage bénéficiant d'une belle luminosité et d'un jardin et 336m²orienté Ouest.
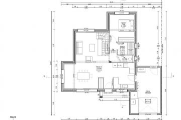
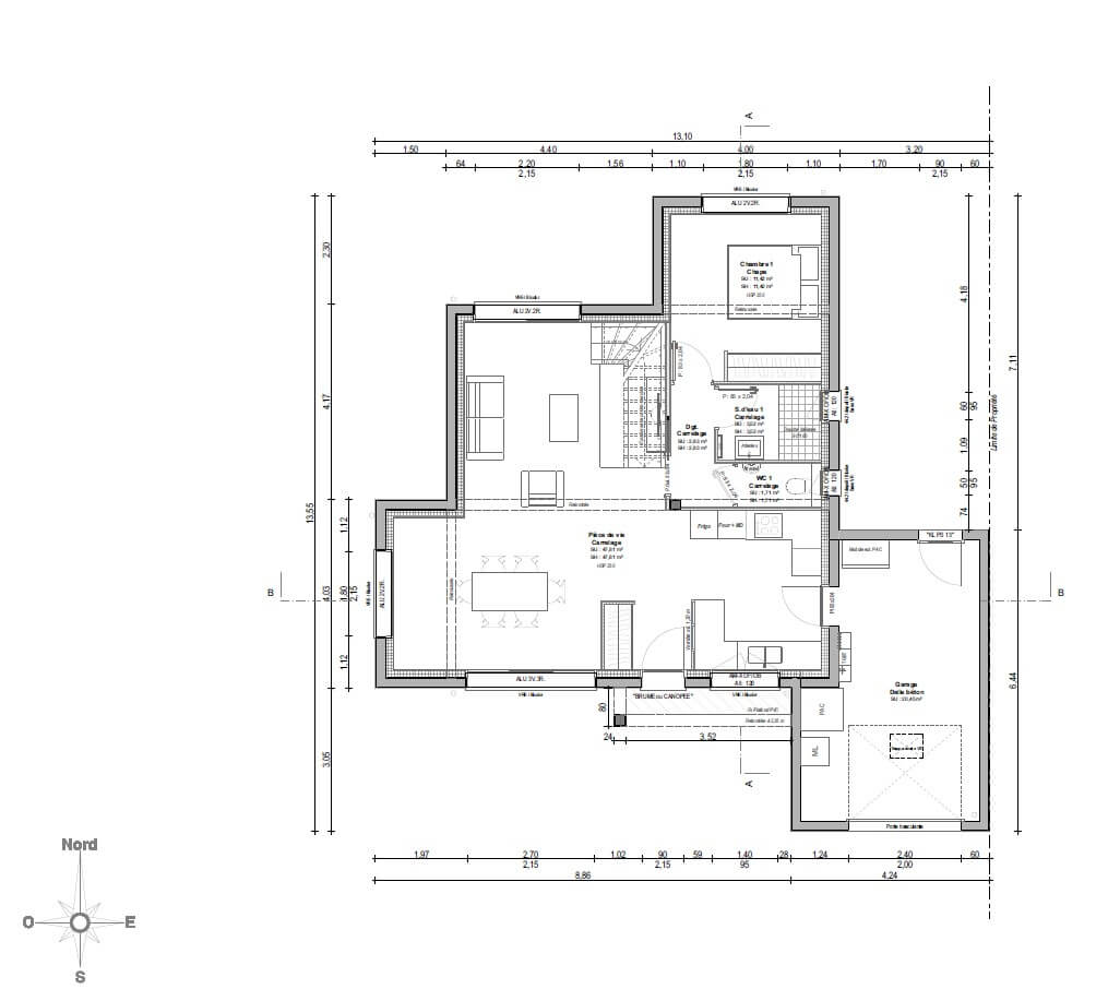
Proche du centre, 8 minutes à pied, 3 minutes en voiture, cette maison est composée de 6 pièces répartie sur 117m². L'Idéal pour votre Famille.
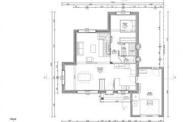
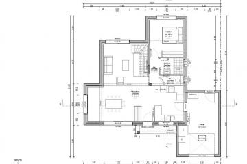
Elle comprend au rez-de-chaussée, une entrée avec placard, une cuisine ouverte, un Salon / Séjour de 47m², une chambre parentale, avec une salle d'eau et placard, des WC séparés.
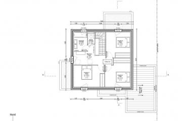
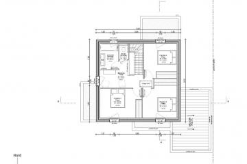
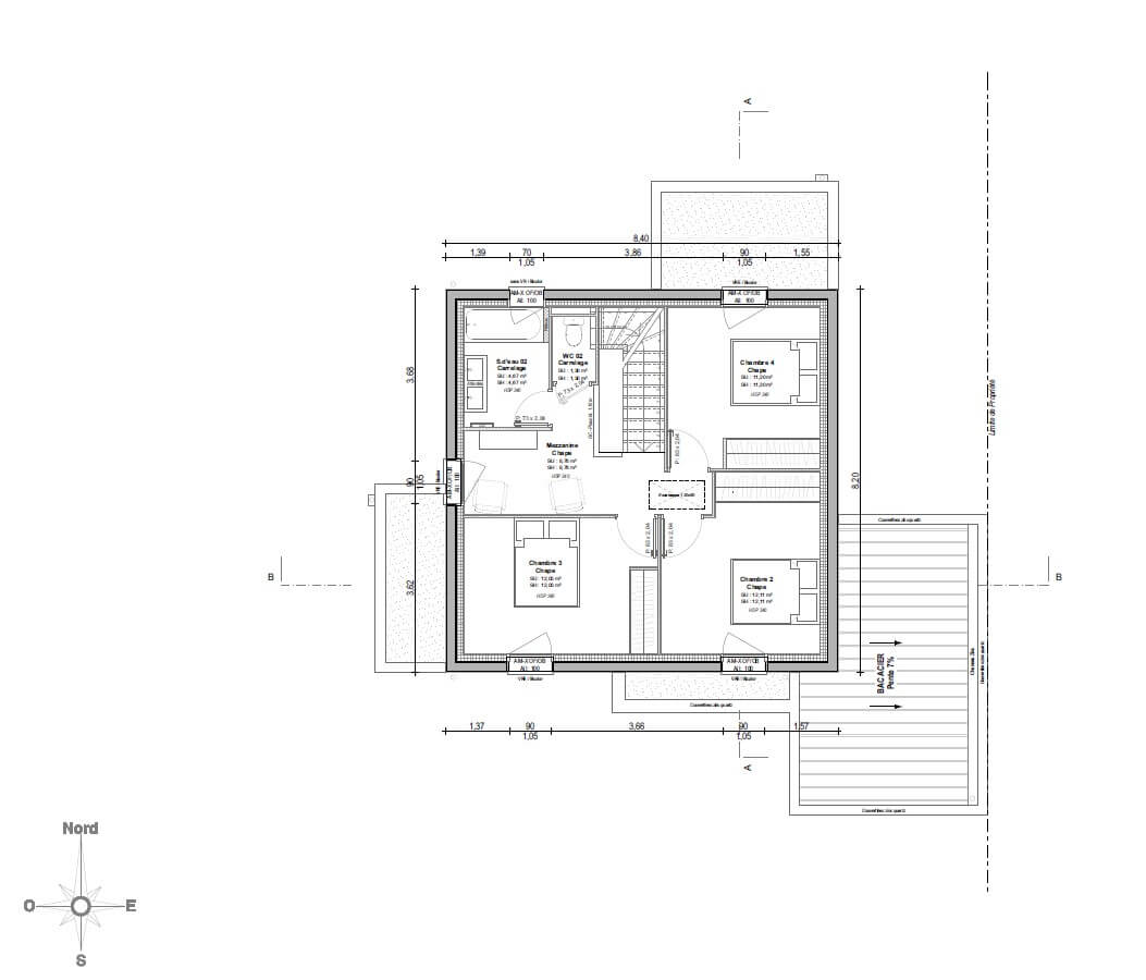
A l'étage, vous pourrez profiter, de 3 chambres spacieuses dont 2 à l'Est, soleil levant, d'une salle de bain WC séparés.
Un garage simple.
Votre projet Maison + Terrain à partir de 297000€ (Hors frais)
NON MANDATÉ POUR LA VENTE DES TERRAINS
Maisons CREATION Rennes n’est pas chargé de réaliser la vente des terrains à bâtir mentionnés dans ces annonces.
Maisons CREATION Rennes agit seulement en qualité de constructeur.
Informations complémentaires
| Chambre(s) : 4 | Salle(s) de bain : 2 | Surface habitable : 117 m² |
| Surface terrain : 336 m² | Surface annexe : 47 m² | Garage(s) : 1 |
| Prix : 297 000 € |
Géolocalisation du bien
*Terrain proposé et vendu par notre partenaire foncier selon disponibilité et autorisation de publicité, prix du terrain hors frais de notaire et d’hypothèque.
Prix maison : hors papiers peints, peintures, revêtements de sol dans les chambres, cuisines, meubles vasques, et faïences (modifiable sans préavis, prix variables suivant les prestations souhaitées) hors frais d’hypothèque.





