A découvrir à Cornillé !
A proximité de Vitré et Rennes, cette maison contemporaine à étage bénéficie d'une belle luminosité et d'un jardin de 410m² orienté Sud-Ouest.
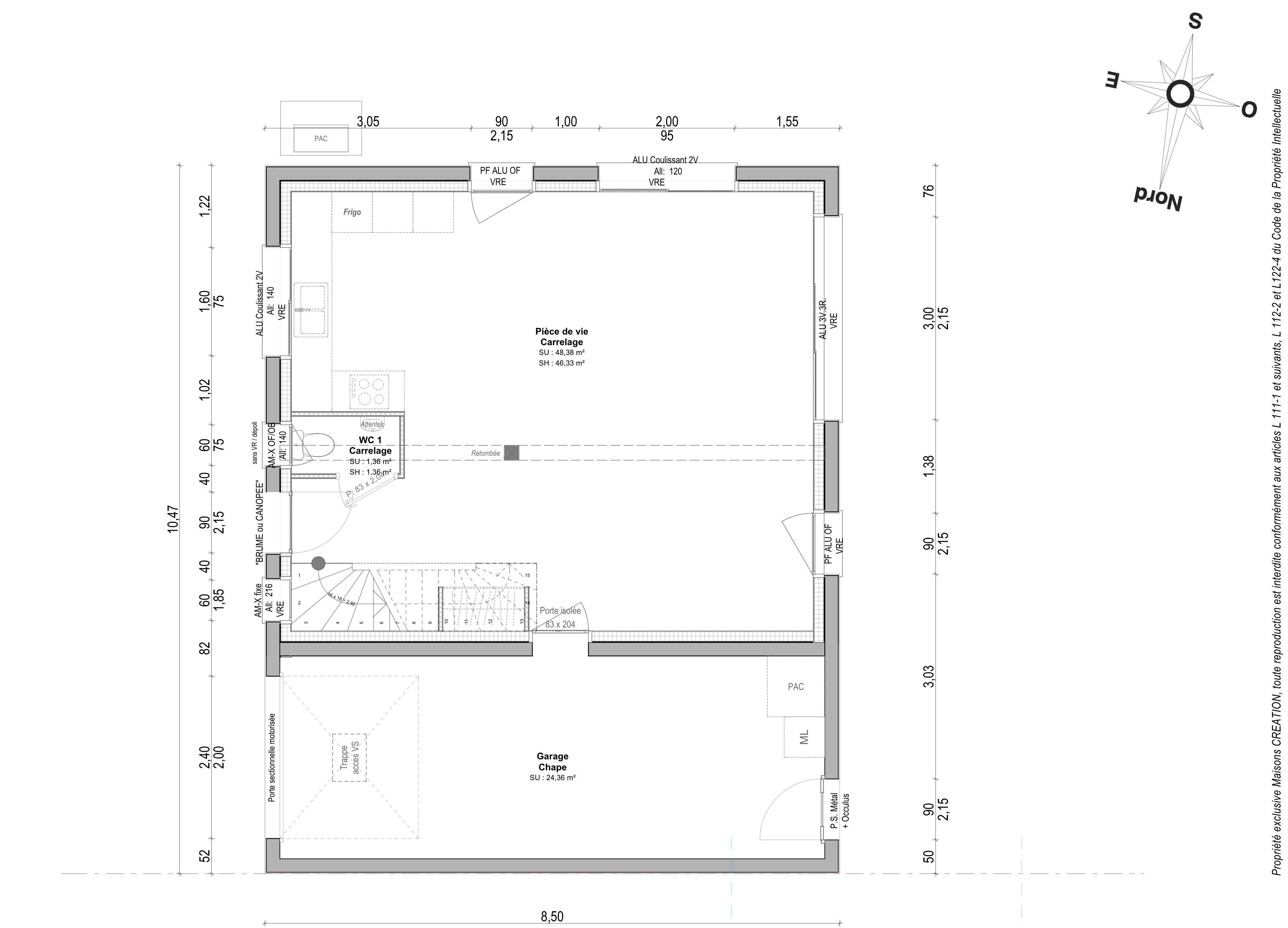
A proximité des écoles, près des commodités et services, cette maison de 93m² comprend :
- au rez-de-chaussée : une cuisine ouverte, des WC séparés, un Salon / Séjour de 48m²,
- A l'étage : vous pourrez profiter de WC séparés, d'une chambre parentale de 14m² et de 2 chambres de 12m².
Cette maison dispose également d'un garage attenant.
Votre projet Maison + Terrain à partir de 261570€ (Hors frais)
NON MANDATÉ POUR LA VENTE DES TERRAINS
Maisons CREATION Rennes n’est pas chargé de réaliser la vente des terrains à bâtir mentionnés dans ces annonces.
Maisons CREATION Rennes agit seulement en qualité de constructeur.
Informations complémentaires
| Chambre(s) : 3 | Salle(s) de bain : 1 | Surface habitable : 93 m² |
| Surface terrain : 410 m² | Surface annexe : 48 m² | Garage(s) : 1 |
| Prix : 261 570 € |
Géolocalisation du bien
*Terrain proposé et vendu par notre partenaire foncier selon disponibilité et autorisation de publicité, prix du terrain hors frais de notaire et d’hypothèque.
Prix maison : hors papiers peints, peintures, revêtements de sol dans les chambres, cuisines, meubles vasques, et faïences (modifiable sans préavis, prix variables suivant les prestations souhaitées) hors frais d’hypothèque.





