Maison 3 chambres à CHAVAGNE – Environnement calme et verdoyant !
À la recherche d’un cadre de vie paisible aux portes de Rennes ? Découvrez cette charmante maison de 87 m² habitables, idéalement située à proximité immédiate du bourg de Chavagne et des écoles.
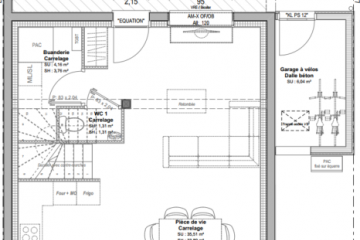
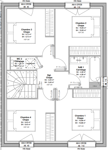
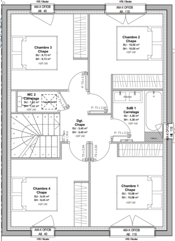
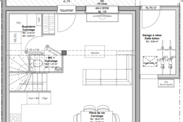
Elle se compose :
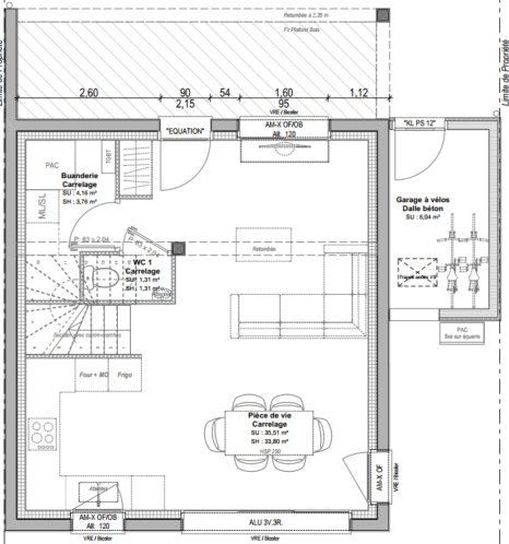
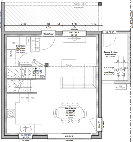
✔️ Au rez-de-chaussée : un bel espace de vie lumineux avec cuisine ouverte, buanderie et WC.
✔️ À l’étage : 3 chambres confortables, salle de bain et WC indépendant.
Le tout sur un terrain de 216 m², dans un environnement verdoyant et calme, parfait pour une vie de famille sereine.
Prix terrain + maison : 257 983 € TTC
Ne manquez pas cette opportunité pour habiter ou investir ! Contactez-nous dès maintenant pour plus d’informations.
Informations complémentaires
| Chambre(s) : 3 | Salle(s) de bain : 1 | Surface habitable : 87 m² |
| Surface terrain : 216 m² | Surface annexe : 34 m² | Garage(s) : 0 |
| Prix : 243 728 € |
Géolocalisation du bien
*Terrain proposé et vendu par notre partenaire foncier selon disponibilité et autorisation de publicité, prix du terrain hors frais de notaire et d’hypothèque.
Prix maison : hors papiers peints, peintures, revêtements de sol dans les chambres, cuisines, meubles vasques, et faïences (modifiable sans préavis, prix variables suivant les prestations souhaitées) hors frais d’hypothèque.





