A Chavagne, proches des commodités et dans quartier résidentiel et calme, Maisons Création vous propose, sur un terrain de 312m², une maison de 108m².
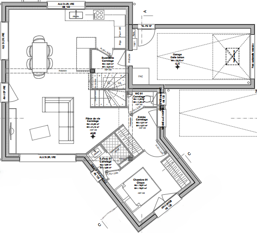
Au rez-de-chaussée, vous trouverez, une pièce de vie de plus de 40m², une chambre avec salle d'eau, une buanderie, des WC indépendants et un garage,
A l'étage : 3 chambres, une salle de bains et des WC indépendants.
Projet intégralement personnalisable.
Informations complémentaires
| Chambre(s) : 4 | Salle(s) de bain : 2 | Surface habitable : 108 m² |
| Surface terrain : 312 m² | Surface annexe : 42 m² | Garage(s) : 1 |
| Prix : 341 000 € |
Géolocalisation du bien
*Terrain proposé et vendu par notre partenaire foncier selon disponibilité et autorisation de publicité, prix du terrain hors frais de notaire et d’hypothèque.
Prix maison : hors papiers peints, peintures, revêtements de sol dans les chambres, cuisines, meubles vasques, et faïences (modifiable sans préavis, prix variables suivant les prestations souhaitées) hors frais d’hypothèque.






