MAISONS CRÉATION vous propose un projet de construction RE2020 situé à proximité du bourg de Cancale et du secteur de Port-Briac, dans un cadre paisible et verdoyant, à quelques minutes du littoral.
Le projet est implanté sur un terrain de 330 m², offrant un environnement agréable et recherché.
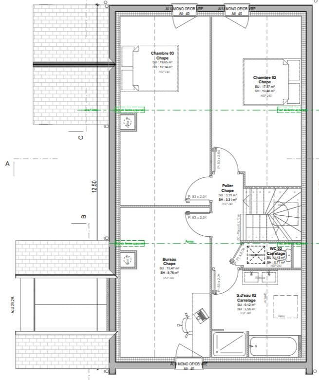
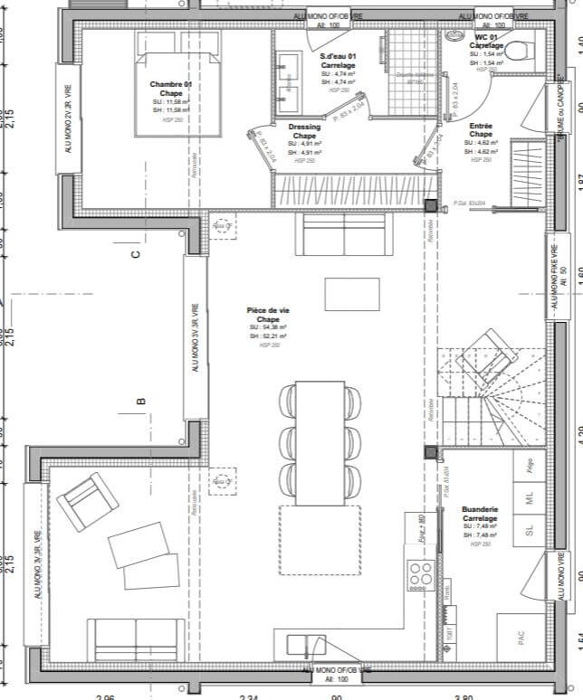
Cet exemple de maison RE2020 développe 129 m² habitables et se compose :
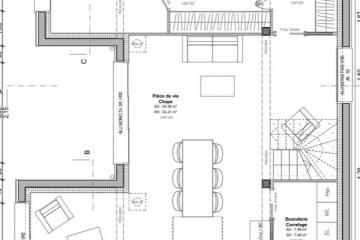
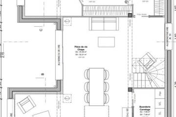
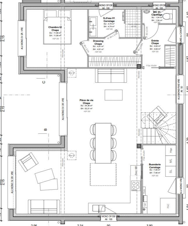
Au rez-de-chaussée :
- Un très bel espace de vie lumineux, bénéficiant d’une triple exposition
- Un accès à une terrasse entièrement abritée
- Une grande buanderie
- Une entrée avec rangements
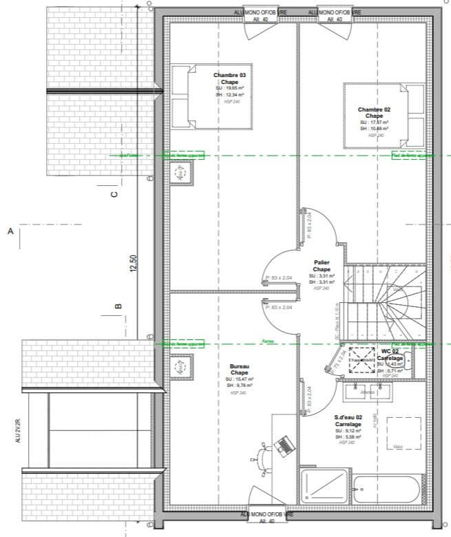
À l’étage :
- 2 belles chambres
- Un bureau
- Une salle de bains
- Un WC séparé
Stationnement
- 2 places de parking extérieures
Un projet personnalisable
Projet incluant le prix du terrain, les garanties et assurances (hors frais annexes liés au terrain et aux finitions de la maison).
Pour plus de renseignements, contactez notre équipe commerciale MAISONS CRÉATION : 02 99 05 36 46
Informations complémentaires
| Chambre(s) : 3 | Salle(s) de bain : 2 | Surface habitable : 129 m² |
| Surface terrain : 330 m² | Surface annexe : 54 m² | Garage(s) : 0 |
| Prix : 432 900 € |
Géolocalisation du bien
*Terrain proposé et vendu par notre partenaire foncier selon disponibilité et autorisation de publicité, prix du terrain hors frais de notaire et d’hypothèque.
Prix maison : hors papiers peints, peintures, revêtements de sol dans les chambres, cuisines, meubles vasques, et faïences (modifiable sans préavis, prix variables suivant les prestations souhaitées) hors frais d’hypothèque.





