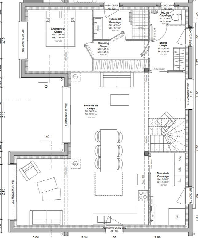
Sur terrain de 330 m² dans un cadre paisible et verdoyant, à proximité du bourg de Cancale et de Port-Briac, nous vous proposons une MAISON RE2020 à étage d'une surface de 129 m² disposant au rez-de-chaussée d'un très bel espace de vie très lumineux car bénéficiant d'une triple exposition.
De cet espace de vie vous profiterez d'une terrasse pleinement abritée.
Pour votre rangement vous pourrez profiter d'une grande buanderie et une belle entrée avec rangement.
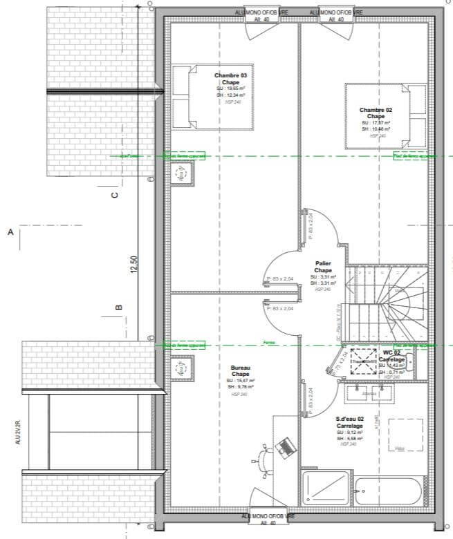
A l'étage on retrouve 2 belles chambres et un bureau, une salle de bain et un WC séparé.
2 places de parking extérieures.
Chez Maisons Creation, tous nos projets sont intégralement personnalisés, tant au niveau de la conception intérieure et architecturale du projet, qu'à la définition du niveau de prestations que vous souhaitez.
Projet incluant prix du terrain, garanties et assurances incluses, hors frais annexes liés au terrain et aux finitions de la maison.
Informations complémentaires
Chambre(s) : 3 | Salle(s) de bain : 2 | Surface habitable : 129 m² |
Surface terrain : 330 m² | Surface annexe : 54 m² | Garage(s) : 0 |
Prix : 432 900 € |
Géolocalisation du bien
*Terrain proposé et vendu par notre partenaire foncier selon disponibilité et autorisation de publicité, prix du terrain hors frais de notaire et d’hypothèque.
Prix maison : hors papiers peints, peintures, revêtements de sol dans les chambres, cuisines, meubles vasques, et faïences (modifiable sans préavis, prix variables suivant les prestations souhaitées) hors frais d’hypothèque.