Situation idéale à Bréal-sous-Montfort !
Située à proximité immédiate du bourg et de ses nombreux commerces, cette maison bénéficie d'une belle luminosité et d'une parcelle de 447m² orientée Sud-Ouest.
Projet personnalisable à 100% mais celui proposé est d'une surface de 129m² habitables et se compose de la façon suivante :
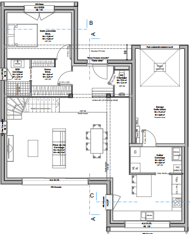
* au rez-de-chaussée : un sas d'entrée avec placard permettant d'accéder au WC, une belle pièce de vie de 51 m² exposée Sud-Ouest, une arrière-cuisine ayant accès au garage et à la cuisine. Et enfin une suite parentale avec dressing et salle d'eau de 20m²,
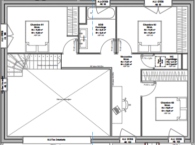
* à l'étage : 3 belles chambres, une mezzanine de 11m² permettant d'installer 1 bureau donnant sur un grand vide sur salon-séjour (belle luminosité), une salle de bains et enfin WC séparés.
Votre projet Maison + Terrain à partir de 384300€ (Hors frais)
NON MANDATÉ POUR LA VENTE DES TERRAINS
Maisons CREATION Rennes n’est pas chargé de réaliser la vente des terrains à bâtir mentionnés dans ces annonces.
Maisons CREATION Rennes agit seulement en qualité de constructeur.
Informations complémentaires
| Chambre(s) : 4 | Salle(s) de bain : 2 | Surface habitable : 129 m² |
| Surface terrain : 463 m² | Surface annexe : 51 m² | Garage(s) : 1 |
| Prix : 384 300 € |
Géolocalisation du bien
*Terrain proposé et vendu par notre partenaire foncier selon disponibilité et autorisation de publicité, prix du terrain hors frais de notaire et d’hypothèque.
Prix maison : hors papiers peints, peintures, revêtements de sol dans les chambres, cuisines, meubles vasques, et faïences (modifiable sans préavis, prix variables suivant les prestations souhaitées) hors frais d’hypothèque.





