Exclusivité à Bourgbarré !
Située à Bourgbarré, à proximité de RENNES, dans le quartier ZAC de la Grée, cette maison traditionnelle à étage en ardoise bénéficie d'une belle luminosité et d'un jardin et 341m² orienté Est.
Résidence principale ou Résidence secondaire, cette maison est située proche du centre, 10 minutes à pied, près des commodités et des services ainsi que des transports.
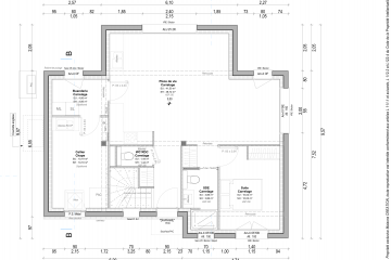
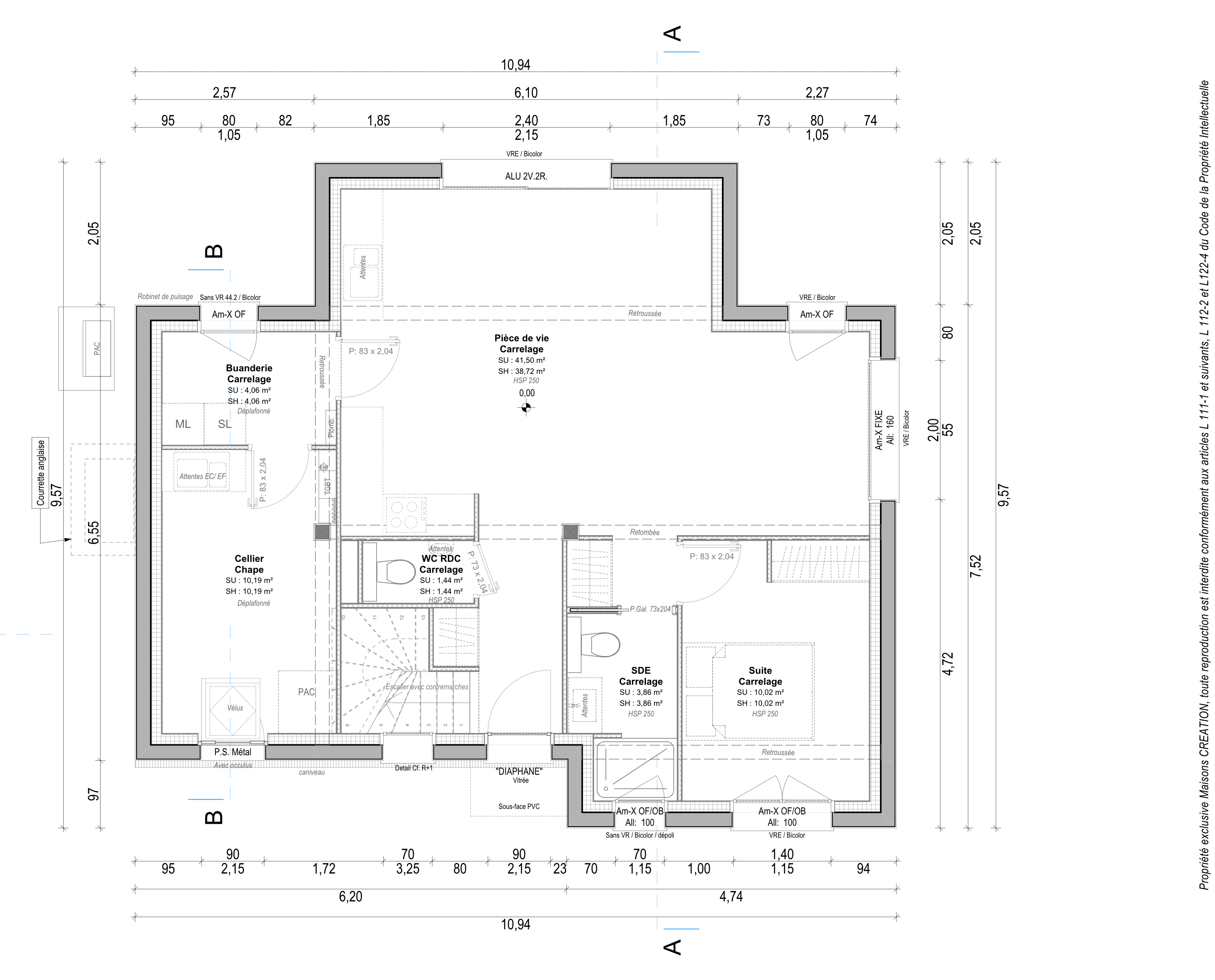
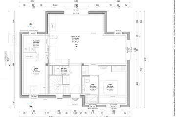
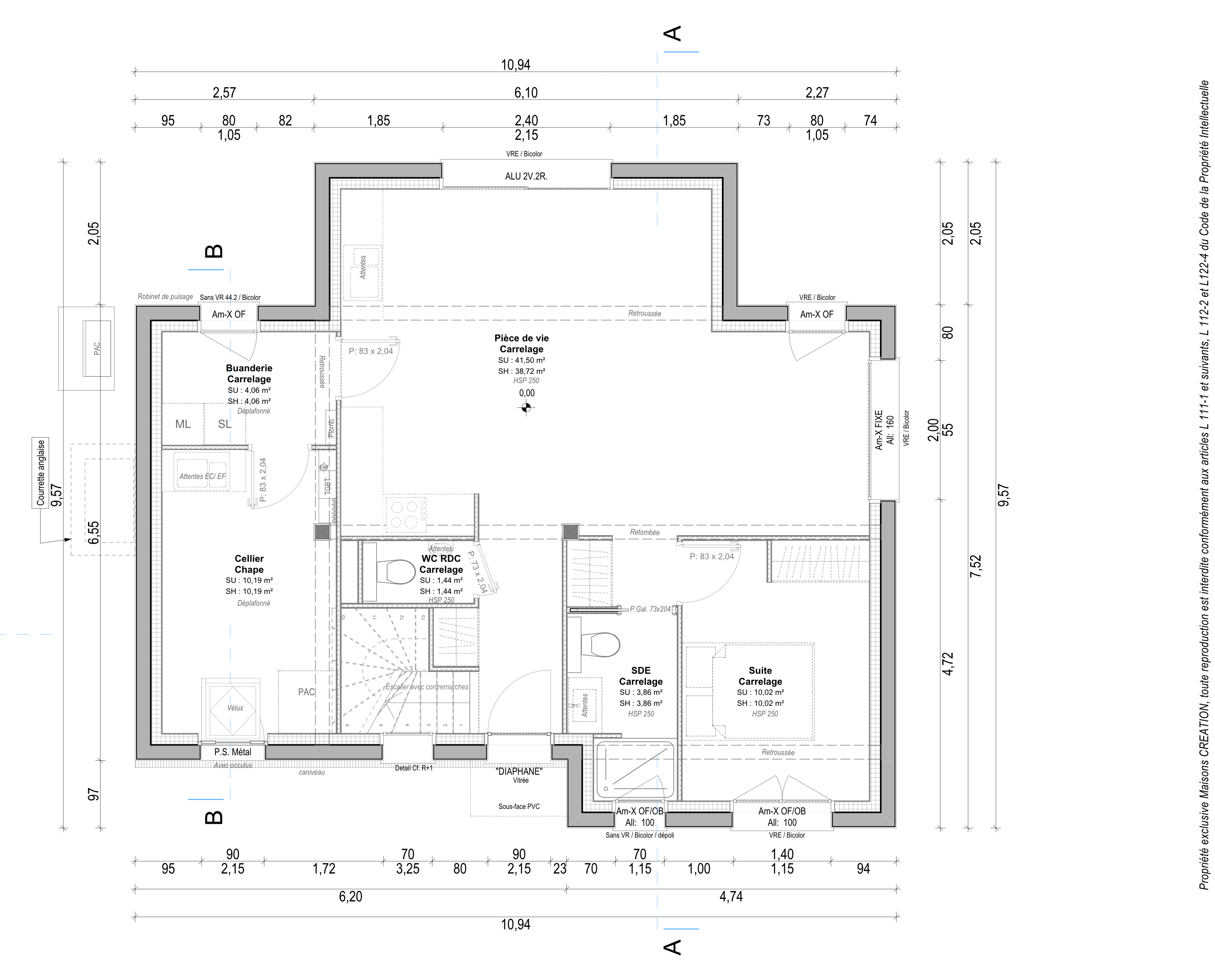
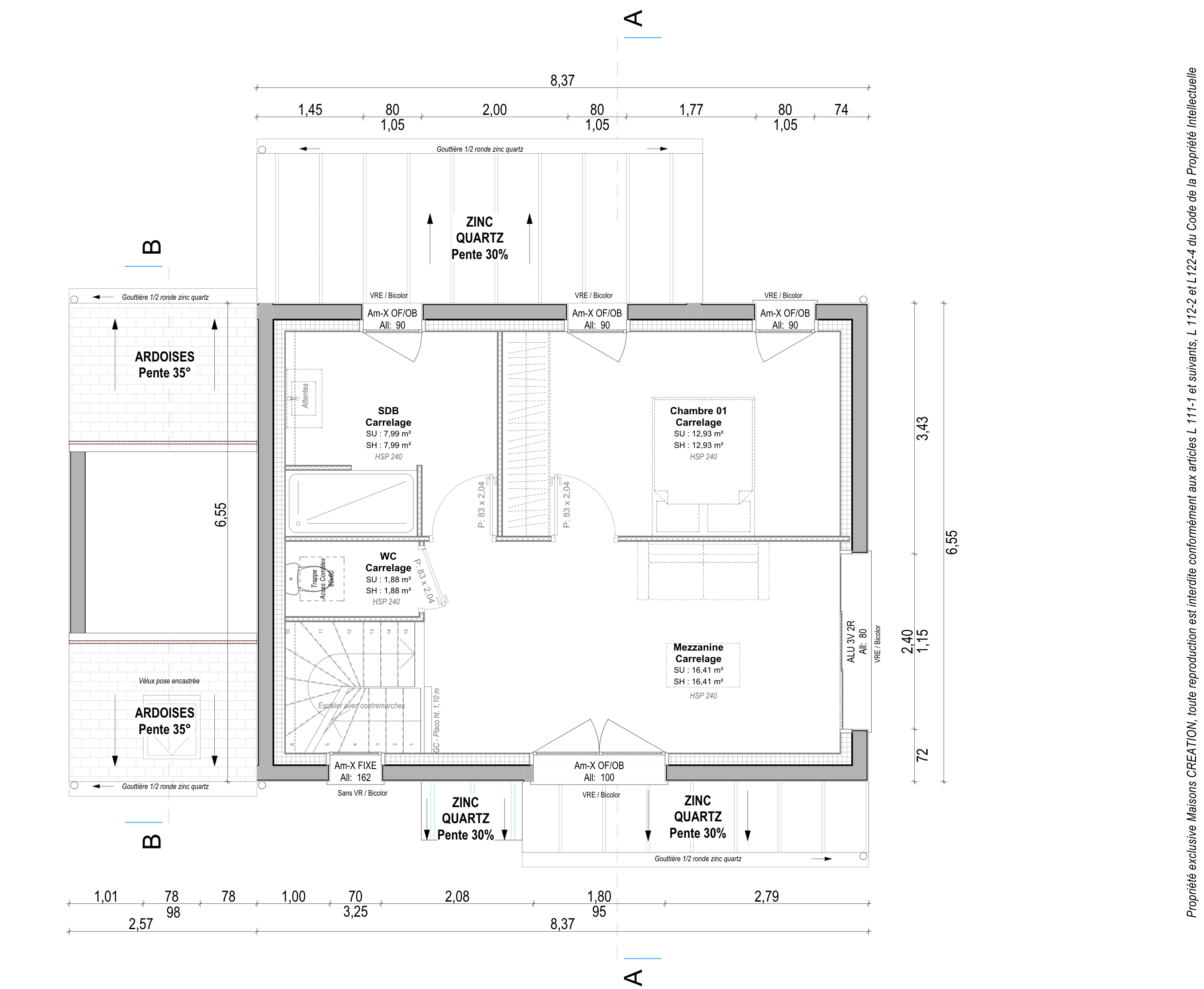
Composée de 6 pièces répartie sur 118m², cette maison comprend au rez-de-chaussée, une entrée, une cuisine ouverte sur un Salon / Séjour de 44m², une chambre parentale de 11m², avec une salle d'eau, avec dressing et des WC séparés.
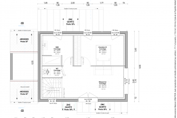
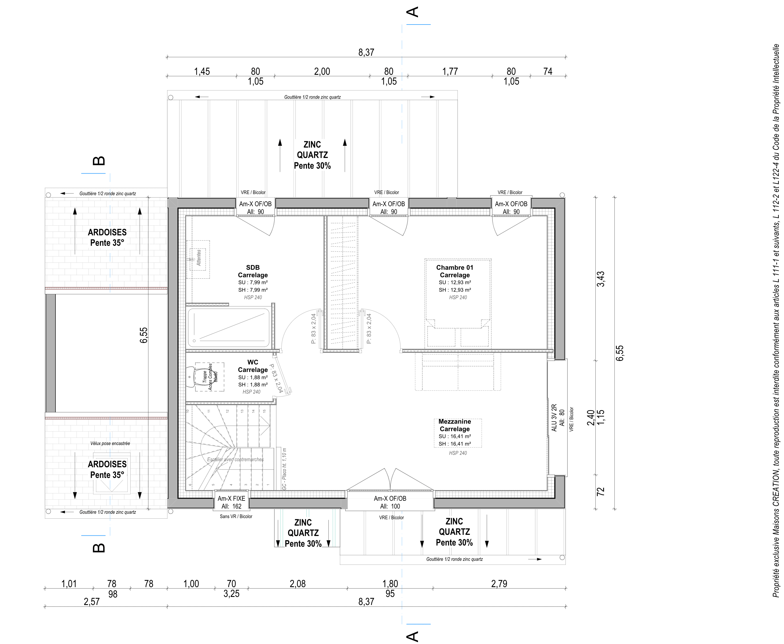
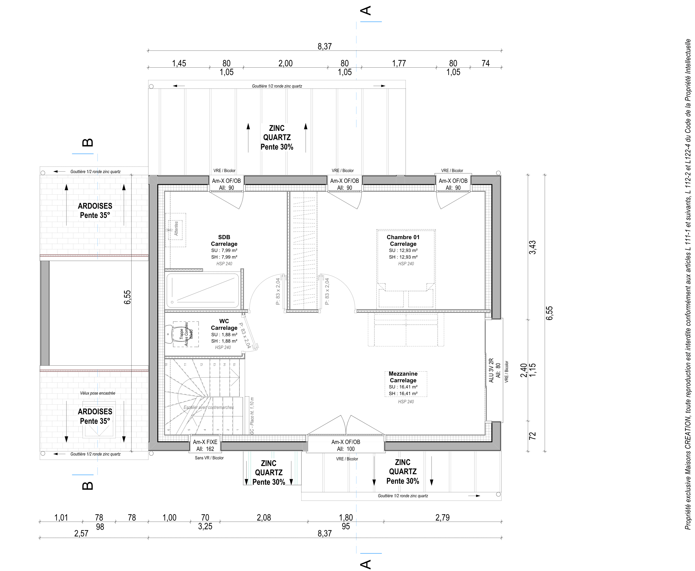
A l'étage, vous pourrez profiter, d'une deuxieme chambre de 11m², avec placard, d'une troisième chambre de 12m², avec placard, d'une quatrieme chambre de 11m², avec placard, d'une salle de bains et des WC séparés.
Cette maison dispose également d'un garage attenant.
Votre projet Maison + Terrain à partir de 292 135€ (Hors frais)
Informations complémentaires
| Chambre(s) : 4 | Salle(s) de bain : 2 | Surface habitable : 118 m² |
| Surface terrain : 341 m² | Surface annexe : 42 m² | Garage(s) : 1 |
| Prix : 302 135 € |
Géolocalisation du bien
*Terrain proposé et vendu par notre partenaire foncier selon disponibilité et autorisation de publicité, prix du terrain hors frais de notaire et d’hypothèque.
Prix maison : hors papiers peints, peintures, revêtements de sol dans les chambres, cuisines, meubles vasques, et faïences (modifiable sans préavis, prix variables suivant les prestations souhaitées) hors frais d’hypothèque.





