Située à Bain-de-Bretagne, à proximité de de l'axe Rennes - Nantes, dans le quartier La Ferronais, cette maison contemporaine bénéficie d'une belle luminosité et d'un jardin et 537m² orienté Sud.
proche du centre, 5 minutes en voiture, à proximité des écoles, proche des transports est composée de 6 pièces répartie sur 100m².
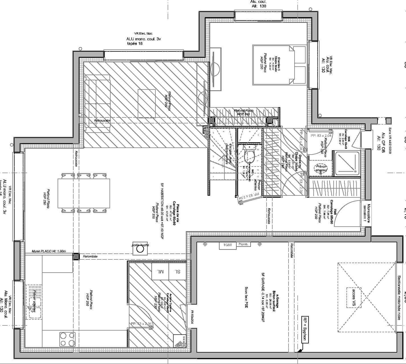
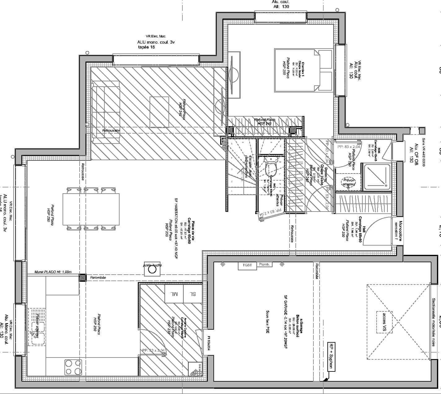
Cette maison comprend au rez-de-chaussée, une entrée, une cuisine ouverte, des WC séparés, un Salon / Séjour de 54m², une chambre parentale de 15m², avec une salle d'eau, avec dressing,
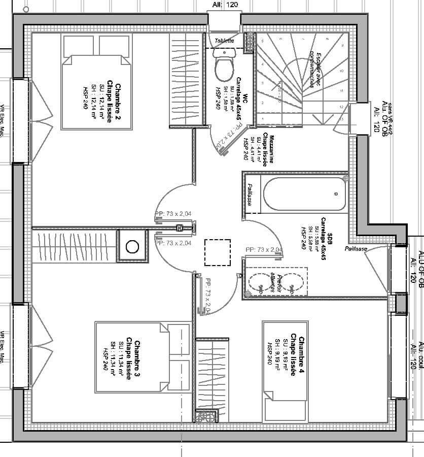
A l'étage, vous pourrez profiter, de WC séparés, une salle de bains et de 3 chambres avce placard.
Cette maison dispose également d'un garage attenant.
Votre projet Maison + Terrain à partir de 265000€ (Hors frais)
Informations complémentaires
| Chambre(s) : 4 | Salle(s) de bain : 2 | Surface habitable : 100 m² | 
| Surface terrain : 537 m² | Surface annexe : 54 m² | Garage(s) : 0 | 
| Prix : 265 000 € | 
Géolocalisation du bien
            *Terrain proposé et vendu par notre partenaire foncier selon disponibilité et autorisation de publicité, prix du terrain hors frais de notaire et d’hypothèque.
Prix maison : hors papiers peints, peintures, revêtements de sol dans les chambres, cuisines, meubles vasques, et faïences (modifiable sans préavis, prix variables suivant les prestations souhaitées) hors frais d’hypothèque.        
            
                                        


