Belle opportunité à proximité d'Evran, sur la commune de ST JUDOCE qui se situe à seulement 20 minutes de Dinan et 30 minutes de Rennes
Maisons Création vous propose un projet de construction sur un terrain de 557 m2 très bien exposé avec son jardin ensoleillé,
Nous vous offrons la possibilité de personnaliser votre propre maison sur un terrain de 785 m² orienté sud/ouest.
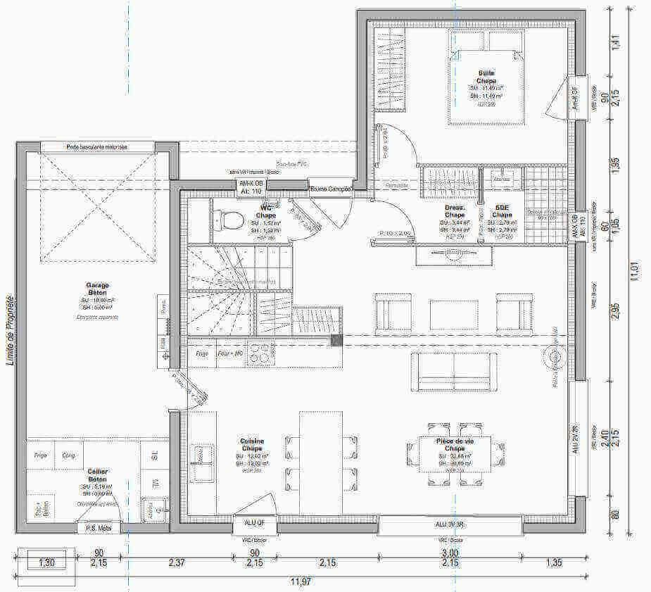
Pour cette maison contemporaine de 113 m², vous trouvez au rez-de-chaussée, une entrée avec placard et un WC discret, un grand séjour/cuisine de 44 m² ouvert sur une terrasse.
Le coin salon est équipé d'un conduit de fumée pour profiter d'un poêle ou d'un insert. Depuis la cuisine, une porte donne accès à un garage de 18 m² et à un cellier de 5 m².
Une suite parentale complète ce niveau avec une chambre de 11 m², un dressing et une salle d'eau.
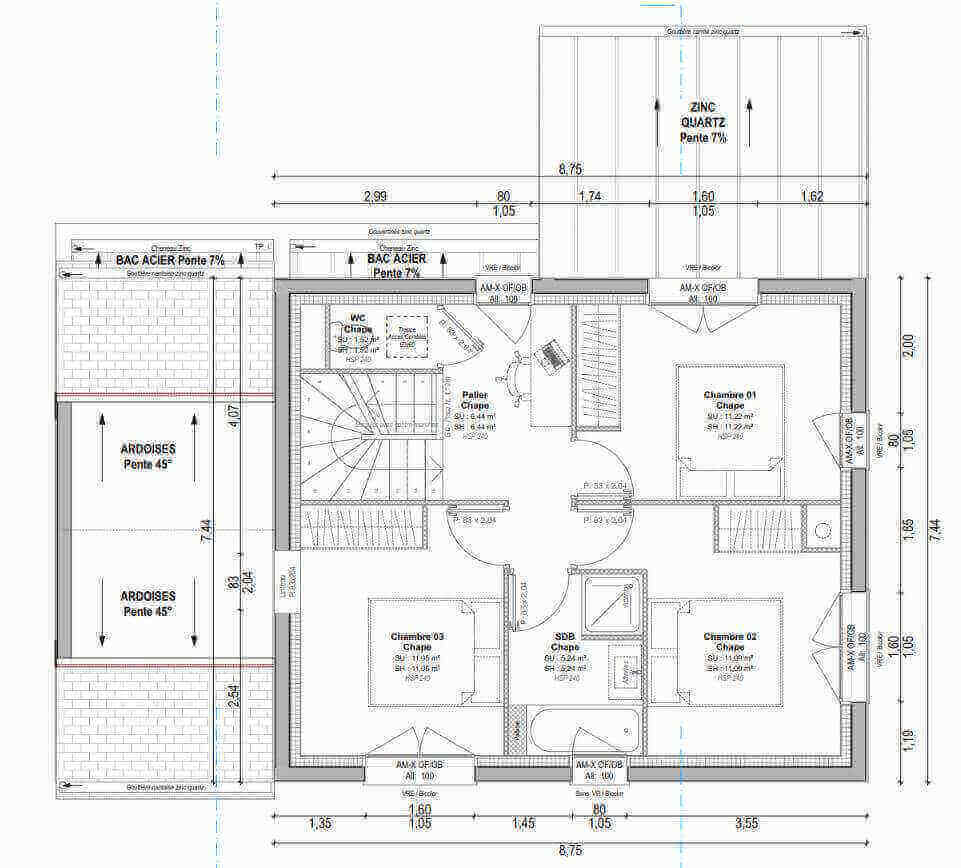
Au 1er étage, on trouve 3 chambres de 11 m² avec placard, une salle d'eau/bain, un espace bureau et un WC séparé.
Chez Maisons Creation, nous personnalisons entièrement tous nos projets pour répondre à vos attentes en termes de conception et de prestations.
Informations complémentaires
Chambre(s) : 4 | Salle(s) de bain : 1 | Surface habitable : 113 m² |
Surface terrain : 632 m² | Surface annexe : 46 m² | Garage(s) : 1 |
Prix : 271 000 € |
Géolocalisation du bien
*Terrain proposé et vendu par notre partenaire foncier selon disponibilité et autorisation de publicité, prix du terrain hors frais de notaire et d’hypothèque.
Prix maison : hors papiers peints, peintures, revêtements de sol dans les chambres, cuisines, meubles vasques, et faïences (modifiable sans préavis, prix variables suivant les prestations souhaitées) hors frais d’hypothèque.